zozo firem
:: عضو منتسِب ::
التفاعل
142
الجوائز
4
- تاريخ التسجيل
- 19 ديسمبر 2014
- المشاركات
- 59
- آخر نشاط
سلاااام عليكم كاااااملييين نشالله كامل تكونو بالف خيييير
خاوتي على بالي خلعكم العنوان :p بصح صح راني مبريسيا راني قريب نروح نسكن :-r
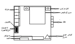
هاد المرة نحتاجكم تعاونوني نبدل الديكور تاع لا شومبر تاعي انا رسمتهالكم كيما راه موجدها راجلي بصح انا
باغية نشونجي معجبتنيش هكداك
ايا كل وحدة شاطرة في الدار ترايي عليا و مرسييي بزاف بزززاف مسبقا

خاوتي على بالي خلعكم العنوان :p بصح صح راني مبريسيا راني قريب نروح نسكن :-r
هاد المرة نحتاجكم تعاونوني نبدل الديكور تاع لا شومبر تاعي انا رسمتهالكم كيما راه موجدها راجلي بصح انا
باغية نشونجي معجبتنيش هكداك
ايا كل وحدة شاطرة في الدار ترايي عليا و مرسييي بزاف بزززاف مسبقا
